PLAN DE CHANGE 2000 X 850 MM + MITIGEUR DOUCHETTE + ESCALIER
Sur devis
Vous recherchez une table à langer qui s’adaptera parfaitement à votre crèche ?
Découvrez notre plan de change 2000 x 850 mm offrant une gamme de fonctionnalités pratiques pour le quotidien des professionnels de la petite enfance :
Un mitigeur douchette,
Deux tapis de change,
Un escalier pour encourager la motricité chez l'enfant.
Conçu pour les crèches et micro-crèches, ce produit est proposé avec différents coloris.
Le délai de livraison varie entre 4 à 6 semaines après validation des plans.
Notre table à langer de qualité professionnelle est spécialement conçue pour répondre aux besoins des crèches et micro-crèches, en particulier pour les espaces restreints.
Le lot est composé d'une table à langer à 3 portes, d'un mitigeur douchette 2211L DELABIE -PP100 et d'un escalier, offrant une solution pratique et complète.
Ce meuble de change sera votre allié pour faciliter les tâches quotidiennes de base liées aux soins d'un enfant, telles que le bain, le change, l'habillage et même le massage.
L'escalier intégré à la table à langer élimine le besoin de se baisser ou de porter l'enfant. Il vous suffit d'ouvrir la porte et de faire monter l'enfant en toute sécurité.
La table à langer est fabriquée à partir de résine de synthèse monobloc, ce qui la rend durable et facile à nettoyer, en plus du côté pratique et fonctionnel !
Les meubles sont livrés non montés afin de faciliter l'installation ultérieure.
Nous vous accompagnons pour toutes vos demandes sur-mesure.
Hors installation.
Photo non contractuelle.
Détails techniques du meuble de change :
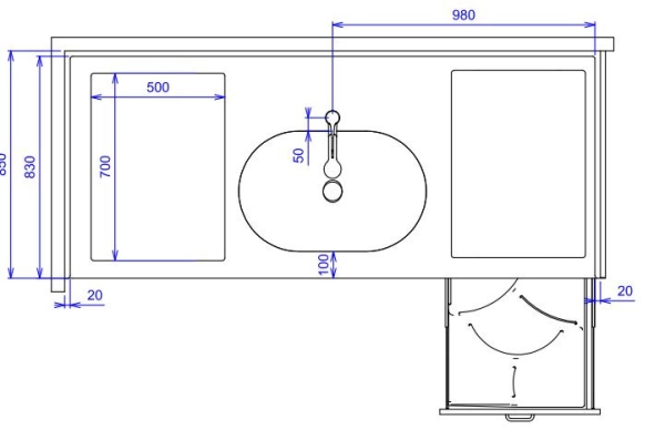
- Matériau : Résine polyester avec finition gel coat RAL9010
- Dimensions de la table : 2 000 (L) x 850 (Pf) mm
- Dimensions de la baignoire : 700 (L) x 450 (La) x 240 (Pf) mm
- Bonde Quick clack + siphon PVC inclus
- Dosserets arrière, droit et gauche, de 150 mm de hauteur
- Bandeau avant de 50 mm de hauteur
- 2 joues mélaminées à disposer selon la configuration du local (Dimensions hors tout avec joues : 2 038 (L) x 850 (Pf) mm)
Inclus :
- 1 meuble à double portes avec une étagère intermédiaire, façades mélaminées et chants PVC blanc de 2 mm
- 1 meuble 1 porte avec deux étagères intermédiaires, façades mélaminées et chants PVC blanc de 2 mm
- 1 meuble escalier coulissant en résine polyester, façades mélaminées et chants PVC blanc de 2 mm
- 2 tapis de change incurvé anti-dérapant de 500 (La) x 700 (L) mm (Coloris à choisir dans le nuancier à votre disposition)
- 1 kit de raccordement PRESTO pour le plan de change
L'ouverture des douchettes se fait avec un coude.
Les meubles sont livrés en plusieurs pièces afin de faciliter l'installation ultérieure.
Hors installation.
Une question ? Besoin d'aide ?
03 67 34 16 16